THIẾT BỊ ĐO THỜI GIAN KHÔ HOÀN TOÀN CỦA SƠN
THIẾT BỊ ĐO THỜI GIAN KHÔ HOÀN TOÀN CỦA SƠN
Model: BGD 264
Hãng sản xuất: BIUGED
Xuất xứ: Trung Quốc
Model: BGD 264
Hãng sản xuất: BIUGED
Xuất xứ: Trung Quốc
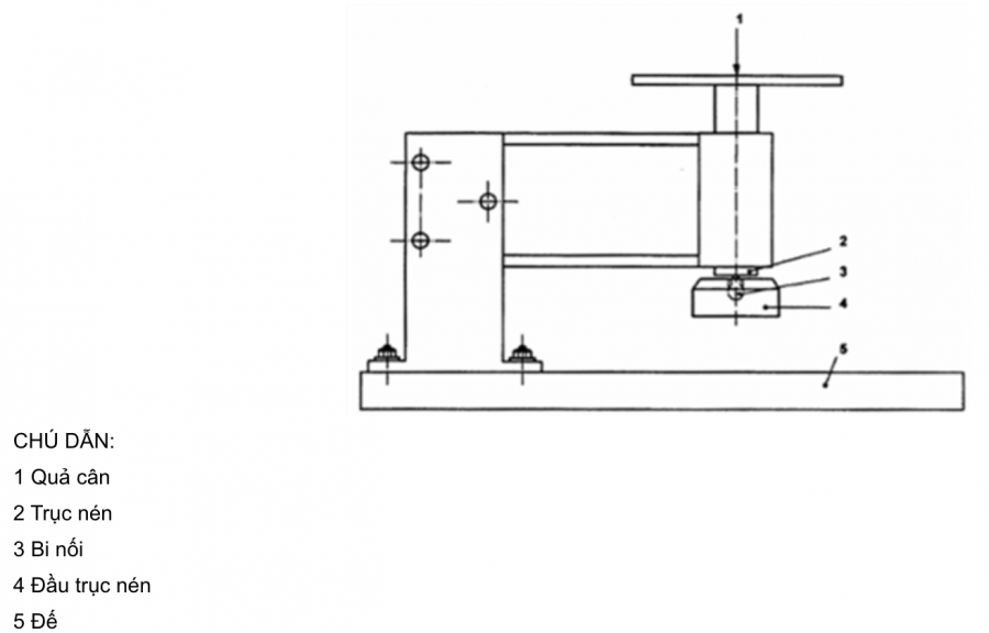
- Đường kính đầu đầu ép: 25mm
- Khối lượng cụm đầu cột: ≤250g
- Đường kính đĩa cao su: (22±1) mm
- Độ dày đĩa cao su: (5±0.5) mm
- Độ cứng của đĩa cao su: (50±5) IRHD
- Kích thước mắt lưới: 100mm×100mm,
- Đường kính mắt lưới (0,12±0,01) mm, khẩu độ khoảng 0,2mm
- Tổng khối lượng tải: (1500±10) g
Giá bán: Liên hệ
SẢN PHẨM CÙNG LOẠI
';











